Hover over the image to pause the slideshow for a closer look.
No items found
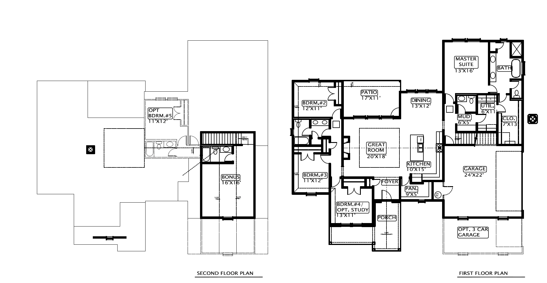
The Hawthorne
Call for Price
4 Bedrooms / 3.5 Bathrooms / 3 Car Garage / SqFt
*Images are representative, and we reserve the right, without notification, to adjust prices, specifications, and elevations. Building materials may be changed, based on the latest research and proven serviceability
Available Communities
The Hawthorne — Homes Available for Quick Move In




